教你如何正确看懂工艺流程图

发布时间:2019-04-01   来源:企事业环保


免费发布环评和验收公示,请上环保之家论坛,咨询热线15356135656

长按识别二维码进入保智

化工工艺图是表达化工生产工艺过程的图样,化工工艺图图样绘制必须遵循《化工工艺设计施工图内容和深度统一规定》(HG 20519)标准。泵管家小编今天推送的这篇文章内容将包括工艺流程图、设备布置图和管路布置图。希望能给各位工程师带来帮助。

1


工艺流程图

工艺流程图是用图示的方法,表示化工生产工艺流程和所需的全部设备、管道及附件和仪表。

根据所处的阶段不同,工艺流程图有初步设计阶段的方案流程图、物料流程图等,也有施工设计阶段使用的带控制点工艺流程图、工艺管道及仪表流程图等。

1.1

方案流程图


方案流程图是初步设计阶段提供的图样,按设备和管路的工艺流程次序,将设备和工艺流程线自左至右展开,画出一系列设备的图形和相对位置的示意图,用以表达整个工厂、车间或工序的生产概况。

方案流程图画法:

1)方案流程图的图幅一般不作规定,图框和标题栏可省略;初步设计可不加控制点,也不必按图例绘制,用细实线按流程顺序依次画出设备示意图,并注写设备名称与位号,设备之间留出绘制流程线的距离,相同的设备可只画一套。

2)用粗实线绘出主要工艺物料流程线,中粗实线画出其他辅助物料的流程线,箭头表明物料流向,流程线一般画成水平或垂直,尽量避免流程线过多地往复交叉。当流程线发生交叉时,一般将后一流程线断开或绕弯通过。

3)常采用图形与表格结合的形式,并配以物料流程线,同时在流程线上标注出各物料的名称、流量以及设备特性数据等。


工艺方案流程图

 

1.2

物料流程图


物料流程图是以图形与表格相结合的方式,反映物料与能量衡算的结果的图样。描述界区内主要工艺物料种类、流向、流量以及主要设备特性数据等。物料流程图只是在方案流程图的基础上增加一些技术参数。


物料流程图

 

1.3

带控制点的工艺流程图


带控制点工艺流程图也称为施工流程图,是在方案流程图的基础上绘制的内容较为详细的工艺流程图。  



1)带控制点工艺流程图的内容

a.图形——应画出全部设备的示意图和各种物料的流程线,以及阀门、管道管件、仪表控制点的符号等。

b.标注——详细标注设备的位号及名称、管段编号、控制点及必要的说明等。

c.图例——给出图中代号、符号及其他标注的说明,有时还有设备位号的索引等。

d.标题栏——注写图名、图号及签字等。

 

2)带控制点的工艺流程图的画法

a. 设备的画法与标注

①设备的画法:

  • 按照主要物料的流程,采用示意性的展开画法,从左至右用细实线和规定图例,按大致比例画出。

  • 常用设备、机器图例见下表。

  • 各设备之间要留有适当距离布置连接管路。

  • 当包括两个或两个以上相同的系统,或有备用设备时,只画一套,其余以细双点画线方框表示,框内注明系统名称及编号;

  • 当流程比较复杂时,可以绘制单独的局部系统流程图,在总流程图中用细双点画线方框表示局部系统。

 

常用的设备、机器图例


 

②设备的标注

 

设备位号及名称的注写

 


表:设备类别代号

序号

   

   

1

各种类型泵

P

2

反应器和转化器

固定床、流化床、反应釜、反应罐(塔)、转化器、氧化炉

R

3

换热器

列管、套管、螺旋板、蛇管、蒸发器等各种换热设备

E

4

压缩机、鼓风机

各类压缩机、鼓风机

C

5

工业炉

裂解炉、加热炉、锅炉、转化炉、电石炉等

F

6

火炬与烟囱

各种工业火炬与烟囱

S

7

容器

各种类型的贮槽、贮罐、气柜、气液分离器、旋风分离器除尘器、床层过滤器等

V

8

起重运输机械

各种起重机械、葫芦、提升机、输送机和运输车

L

9

塔设备

各种填料塔、板式塔、喷淋塔、湍球塔和萃取塔

T

10

称量机械

各种定量给料称、地磅、电子称等

W

11

动力机械

电动机(S)、内燃机(E)、汽轮机、离心透平机(S)、活塞式膨胀机等其他动力机(D

ME

SD

12

其他机械

各种压滤机、过滤机、离心机、挤压机、柔和机、混合机

M

   

b.管道画法与标注

①管道画法

  • 带控制点的工艺流程图中应画出所有工艺物料管道和辅助物料(如蒸汽、冷却水等)的管道。主要物料的流程线画粗实线,其他画中实线表示。

  • 常用管道符号图例,见下表。

  • 管道流程线要用水平和垂直线表示,管道转弯处一般画成直角。应避免穿过设备或交叉,在不可避免时,将其中一管道断开一段,一般同一物料线交错,按流程顺序先不断、后断;不同物料线交错,按主不断、辅断绘制。


表:常用管道符号
 

②管道的标注


管道代号的注写

 

表::物料名称及代号

代号

物料名称

代号

物料名称

代号

物料名称

代号

物料名称

AG

气氨

FL

液体燃料

LS

低压蒸汽

PW

工艺水

AL

液氨

FG

燃料气

LUS

低压过热蒸汽

SC

蒸汽冷凝水

AR

空气

FRG

氟利昂气体

MS

中压蒸汽

SG

合成气

AW

氨水

FRL

氟利昂液体

MUS

中压过热蒸汽

SL

泥浆

BW

锅炉给水

FS

固体燃料

N

SW

软水

CA

压缩空气

FSL

熔盐

NG

天然气

TG

尾气

CG

转化气

FV

火炬排放气

PA

工艺空气

TS

伴热蒸汽

CSW

化学污水

FW

消防水

PG

工艺气体

RW

原水、新鲜水

CWR

循环冷却水回水

H

PGL

气液两相流工艺物料

RWR

冷冻盐水回水

CWS

循环冷却水上水

HS

高压蒸汽

PGS

气固两相流工艺物料

RWS

冷冻盐水上水

DNW

脱盐水

HUS

高压过热蒸汽

PL

工艺液体

VE

真空排放气

DR

排液、导淋

HWR

热水回水

PLS

液固两相流工艺物料

VT

放空

DW

饮用水、生活用水

HWS

热水上水

PRG

气体丙烯或丙烷

WW

生产废水

ERG

气体乙烯或乙烷

IA

仪表空气

PRL

液体丙烯或丙烷



ERL

液体乙烯或乙烷

IG

惰性气

PS

工艺固体



 

c.  阀门、管道管件的画法与标注



a)同轴异径管标注    b)同管道号不同管径标注 c)同管道号不同等级

 

d.仪表、控制点的画法与标注

工艺流程图上应按标准图例画出和标注全部与工艺有关的检测仪表、调节控制系统口取样点和取样阀(组)。

仪表控制点用符号表示,并从其安装位置引出。

符号包括图形符号和字母代号,它们组合起来表达仪表功能、被测变量、测量方法。


仪表的图形符号



仪表的位号



仪表的标注方法

 

3)工艺流程图的阅读

看标题栏和图例中的说明,了解图样名称、各种图形符号、代号的意义及管道的标注等。掌握系统中设备的数量、名称及位号,了解物料的工艺施工流程线。

注意:在实际生产中,为了便于操作,常将各种管线按规定涂成不同颜色。因此,在生产车间实地了解工艺流程或进行操作时,应注意颜色的区别。

2


设备布置图

设备布置图是表达厂房建筑内外的设备之间、设备与建筑物之间的相对位置的图样。

设备布置图用以指导设备的安装、布置,并作为厂房建筑、管道布置设计的重要依据。

2.1

设备布置图的内容


根据设备布置图的作用,它必须包括以下内容:

(1)一组视图  表示设备在厂房内外布置情况的平面图和剖面图等。

(2)尺寸  图中要标注与设备定位有关的建筑物定位轴线的编号、设备支承点(POS)标高和设备管口的标高、设备的名称与位号等。图中尺寸的单位除标高及总平面图以米为单位外,其他尺寸均以毫米为单位。地面设计标高为EL100.00

 (3)指北针  图纸右上角表示安装方位的图标。

 (4)标题栏  注写单位名称、图名、图号、比例及签字、日期等。

 (5)附注说明  说明与设备安装有关的特殊要求,比如设备一览表、设备规格等。 

2.2

设备布置图的画法


1)视图表示方法

比例与图幅,分区,视图配置 

2)设备表示方法

定型设备和非定型设备;

同一位号的多台设备,在图上可画出一台设备的外形,其他的可以只画出基础或用双点画线的方框表示;

设备一览表。



特征管口的方位角

 




2.3

设备布置图的阅读



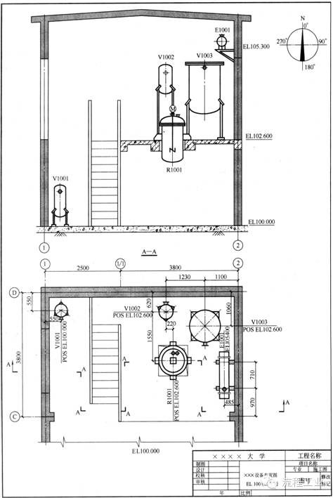
某物料残液蒸馏系统设备布置



图样中有平面图和I-I剖面图。按工艺要求,冷凝器E0401架空,其物料出口的管口高于真空受液槽V0408AV0408B的进料口,物料可以自流到V0408AV0408B中,为便于E0401的支承和避免遮挡窗户,将其靠墙并靠近建筑轴线②附件布置。为满足操作维修要求,各设备之间留有必要的间距。

剖面图表达了室内设备在立面上的位置关系,剖面图的剖切位置在平面图上I-I处,蒸馏釜和真空受槽AB布置在标高为5m的楼面上,冷凝器布置在标高为6.95m处。

3


管道布置图

3.1

管道布置图的图示

1)一组视图  用平面图、剖视图等表示整个车间(装置)的设备、建筑物的简单轮廓以及管道管件、阀门、仪表控制点等的布置安装情况。

2)尺寸  标注管道管件、阀门、控制点等的平面位置尺寸和标高以及建筑物轴线编号、设备位号及说明等。

3)指北针  表示管道安装的方位基准。

4)标题栏  注写图名、图号、比例、修改、签字等。

5)管口表  在图纸右上角,列出与所有设备管口有关内容的管口表。

3.2

管道的图示方法


1)管道视图的配置与画法

管道视图的配置

2)管道视图的画法

a.设备的画法    

b.管道的画法

 


管道的画法


管道的连接画法                


管道用三通的表示法

 


各种管道的画法

 

c.管道附件的画法


示例:根据图(a)所示管道(装有阀门)轴测图画出其平面图和立面图。

分析:该段管道有两部分,主管道的走向为自下向上一向后一向左一向上一向后;支管向左。管道上有四个截止阀,上部两个阀的手轮朝上(阀门与管道为法兰连接),中间一个阀的手轮朝右(阀门与管道为螺纹连接),下部一个阀的手轮朝前(阀门与管道为法兰连接)。根据轴测图画出的平面图和立面图,如图(b)。


 

3)管道布置图的标注

建筑物——一般管道定位基准是建筑物的轴线和层面标高,因此必须标注建筑物定位轴线编号和间距尺寸,标注地面、楼板、平台和建筑物的标高。

设备——图中标注设备的位号和定位尺寸,设备中心线上方标注与流程图一致的设备位号,下方标注支承点标高或中轴中心线标高;

管道——管道上方要标注与流程图一致的管道编号,下方标注管道标高,管道布置图以平面图为主,标注出所有管道的定位尺寸及标高。

单根管道也可用指引线引出标注,多根管道一起引出标注时,如下图所示。

管路安装有坡度要求时,应注坡度(代号i)和坡向,如下图所示,图中“WPEL×××.×××为工作点标高。


几根管道的引出标注方法                   


坡度及坡向标注

 

管架的标注——图上管架的图例上应该标注管架编号、定位尺寸、标高。管道附件 一般不标注尺寸,对有特殊要求的管件,应标注出某些要求与说明。


管架标注

 

3.3

管道布置图的阅读


阅读管路布置图图,主要是通过图样了解该项工程的设计意图,弄清各管道与建筑物、设备之间的相对位置以及管件、阀门、仪表控制点等在管道上的布置情况。读图时以平面布置图为主,配以剖面图,分析清楚管道的空间走向。

            

4


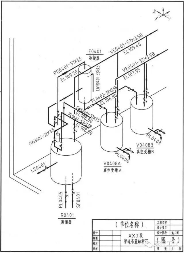
管道轴测图

管道轴测图又称管段图,按管道HG20519.13规定绘制,是用轴测图表达管路布置的图样。表达一段管道管件、阀门、控制点等布置的情况,广泛应用于上、下水道,采暖和通风等工程。


图例:物料残液蒸馏处理系统的管道轴测图。


4.1

管道轴测图的内容


1)视图正等测画出管道管件、阀门、控制点等图形和符号。

2)尺寸标注出管段编号、管段所连设备的位号及管口符号。

3)指北针表示安装方位基准,北(N)向与管道布置图上的一致。

4)材料表列表说明管段所需的材料规格、尺寸、数量等。

5)标题栏填写图名、图号、签名等。

4.2

管路轴测图画法GB/T6567.5


1)管道轴测图不必按比例绘制,但各种阀门、管件及它们位置相对比例要协调。

2)当管道平行于直角坐标轴时,轴测图用平行于对应的轴测轴的直线绘制;当管道不平行于直角坐标轴时,应画出平行于相应坐标轴的细实线,表示管子所处的平面;管道在水平面内倾斜时,画出与y轴平行的细实线(构成水平面)(a)管道在铅垂面内倾斜时,画出平行于Z轴的细实线(构成铅垂面)(b)管道是一般位置时,需要同时画出与Y轴和Z轴分别平行的细实线,如图(c) 所示。


管道倾斜的表示方法

 

3)管道的连接方式画法


管道连接的表示方法


管道倾斜的表示方法


4.3

标注

管段图中应标注管段编号,管段所连接的设备位号,管口号或其他管段号以及管径、管件、阀门等有关安装所需的尺寸。

管道号和管径标注在管道上方,所有垂直管道不注长度尺寸,标注水平管道的标高“EL”,并注在管道的下方。

来源:泵管家

长按识别以下二维码关注

不当之处,欢迎回消息告知删稿事宜,本号将尽快处理。谢谢!